三里屯苹果公司办公区降噪总结报告
1. 项目概况
本工程位于北京市三里屯,噪声源为供电设备间。由于现场干式电力变压器设备没有做合适的降噪处理,导致振动通过地面、墙面传递到紧邻的工作区,为了减小噪声对工作区的影响,特制定本降噪工作。现场情况见下图

我方于2019年12月我方进行了现场实勘,经测试和分析发现苹果公司的噪声主要来源于变压器的振动。变压器的振动传递给地面,沿着地面传播,由地面又传递到墙面、顶面,致使办公区内噪声较高,超过国家规范。我方提出了相应的治理方案,主要治理措施为对变压器进行隔振,由于变压器属于特种设备,进行隔振处理时必须停机。而停机对商户有很大影响,且需要供电局配合,因此协调工作量较大,很难在短时间内进行实施。我方又出了妥协性改造方案,在机房顶部做了吸声处理,公共墙做了隔声加强,办公区内噪声有了一定的改善,但仍未能达到国家相应标准。2020年3月初我方又出具了彻底性的改造方案和妥协性的解决方案。后经甲方协调由供电门部门对变压器实施了变压器的隔振和母线槽弹性处理。
2. 第一阶段改造总结
改造前现场噪声情况设备间内噪声60dBA,工作区噪声46.7-49.0dBA,不满足国家标准,对工作区人员有较大影响。改造前测试数据如下所示
|
频率(Hz)/测点 |
31.5 |
40 |
50 |
63 |
80 |
100 |
125 |
160 |
200 |
250 |
315 |
400 |
500 |
630 |
|
测点一(机房) |
46.6 |
44.4 |
47.2 |
38.1 |
41.2 |
65.4 |
48.2 |
45.7 |
57.3 |
46.3 |
59.3 |
58.4 |
55.4 |
52.6 |
|
测点二(工作间) |
44.1 |
43.6 |
45 |
44.7 |
42.7 |
56.4 |
48.2 |
45 |
44.6 |
42.1 |
40 |
38 |
35 |
34 |
|
测点三(工作间) |
41 |
40.6 |
40.4 |
33.4 |
44.1 |
62.1 |
46.4 |
43 |
48.2 |
40.8 |
39.1 |
38.5 |
39.4 |
37.9 |
|
频率(Hz)/测点 |
800 |
1k |
1k25 |
1k6 |
2k |
2k5 |
3k15 |
4k |
5k |
6k3 |
8k |
10k |
12k5 |
W-A |
|
测点一(机房) |
49.8 |
49.2 |
42 |
39.2 |
41.1 |
38.1 |
38.9 |
36.9 |
36.9 |
36 |
33.7 |
32.1 |
31.2 |
60 |
|
测点二(工作间) |
35.4 |
35.3 |
35.6 |
34.5 |
33.5 |
35.9 |
29.7 |
30.6 |
28.7 |
25.2 |
17.2 |
14.4 |
13.5 |
46.7 |
|
测点三(工作间) |
37.2 |
36.8 |
38.2 |
36.2 |
34.5 |
37.6 |
31.4 |
31.8 |
30.5 |
27.6 |
22.5 |
20.3 |
18.3 |
49 |
改造后测点与数据如下所示

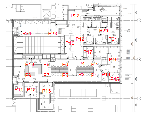
现场平面布局图
|
频率(Hz)/测点 |
31.5 |
40 |
50 |
63 |
80 |
100 |
125 |
160 |
200 |
250 |
315 |
400 |
500 |
|
1 |
36.5 |
37.7 |
40.0 |
32.9 |
38.8 |
64.6 |
46.5 |
33.9 |
47.4 |
32.2 |
40.0 |
24.1 |
21.5 |
|
2 |
36.2 |
36.2 |
39.9 |
35.3 |
39.0 |
63.6 |
45.7 |
34.5 |
50.5 |
33.6 |
39.4 |
25.0 |
21.1 |
|
3 |
40.2 |
40.6 |
41.8 |
38.2 |
40.7 |
63.2 |
49.7 |
41.5 |
37.1 |
30.2 |
40.2 |
25.7 |
22.9 |
|
4 |
40.3 |
38.3 |
41.2 |
37.2 |
38.6 |
60.4 |
46.5 |
38.0 |
36.9 |
30.4 |
33.2 |
27.2 |
23.9 |
|
5 |
36.4 |
37.1 |
38.6 |
33.5 |
36.2 |
59.8 |
45.3 |
38.5 |
45.4 |
30.5 |
37.2 |
25.6 |
23.2 |
|
6 |
37.3 |
36.2 |
39.9 |
35.4 |
38.7 |
62.8 |
48.0 |
39.9 |
42.2 |
29.7 |
36.3 |
25.6 |
22.3 |
|
7 |
34.3 |
35.7 |
37.9 |
33.4 |
34.2 |
56.0 |
43.5 |
37.3 |
46.1 |
30.2 |
33.6 |
25.0 |
19.8 |
|
8 |
35.7 |
33.6 |
36.6 |
31.8 |
33.2 |
56.8 |
40.2 |
30.2 |
42.8 |
27.8 |
38.2 |
26.9 |
21.7 |
|
9 |
34.7 |
36.5 |
40.6 |
32.1 |
29.5 |
49.0 |
35.7 |
27.5 |
42.8 |
27.5 |
38.1 |
23.2 |
19.2 |
|
10 |
34.5 |
34.0 |
40.1 |
32.4 |
29.4 |
45.3 |
35.4 |
30.2 |
43.7 |
28.4 |
30.0 |
24.0 |
18.8 |
|
11 |
36.0 |
34.1 |
36.2 |
34.5 |
33.4 |
36.9 |
37.4 |
35.6 |
38.0 |
22.1 |
25.8 |
14.1 |
10.4 |
|
12 |
35.3 |
31.2 |
30.8 |
27.6 |
24.4 |
31.8 |
29.9 |
25.9 |
47.1 |
29.2 |
25.7 |
21.3 |
13.2 |
|
13 |
36.7 |
35.8 |
35.5 |
33.5 |
31.7 |
47.3 |
39.2 |
35.5 |
41.3 |
25.5 |
34.6 |
17.3 |
12.6 |
|
14 |
37.6 |
36.1 |
40.5 |
33.5 |
35.9 |
59.3 |
41.8 |
32.6 |
35.7 |
24.9 |
35.0 |
24.9 |
17.7 |
|
15 |
54.3 |
52.0 |
49.7 |
45.0 |
41.9 |
60.5 |
45.5 |
33.4 |
34.2 |
27.9 |
40.1 |
24.8 |
18.6 |
|
16 |
59.2 |
56.8 |
56.0 |
50.7 |
48.6 |
51.0 |
39.1 |
28.6 |
34.5 |
26.1 |
26.8 |
21.9 |
17.4 |
|
17 |
53.0 |
51.8 |
49.0 |
44.7 |
40.1 |
48.6 |
37.6 |
30.1 |
35.7 |
22.0 |
34.7 |
15.2 |
13.1 |
|
18 |
59.9 |
59.6 |
54.4 |
52.9 |
49.3 |
59.5 |
43.3 |
32.7 |
39.1 |
26.7 |
33.0 |
21.9 |
25.3 |
|
19 |
40.5 |
39.7 |
42.1 |
35.9 |
39.9 |
50.2 |
37.5 |
35.3 |
46.0 |
33.2 |
35.6 |
26.7 |
25.8 |
|
20 |
37.0 |
38.5 |
43.2 |
37.4 |
36.2 |
53.9 |
40.7 |
35.3 |
40.7 |
28.1 |
30.4 |
20.4 |
19.4 |
|
21 |
38.2 |
36.4 |
34.7 |
31.0 |
29.1 |
37.0 |
33.5 |
30.0 |
38.7 |
25.8 |
31.9 |
18.5 |
16.3 |
|
22 |
39.3 |
40.4 |
41.3 |
36.6 |
43.1 |
59.8 |
44.7 |
42.9 |
47.2 |
35.6 |
30.5 |
28.4 |
28.4 |
|
23 |
38.7 |
40.3 |
42.4 |
35.2 |
35.8 |
46.5 |
34.6 |
30.1 |
37.0 |
25.3 |
33.2 |
21.8 |
18.4 |
|
24 |
38.7 |
39.4 |
45.6 |
37.0 |
35.7 |
43.7 |
35.5 |
30.6 |
38.1 |
24.5 |
26.2 |
20.8 |
18.7 |
|
频率(Hz)/测点 |
630 |
800 |
1k |
1k25 |
1k6 |
2k |
2k5 |
3k15 |
4k |
5k |
6k3 |
8k |
W-A |
|
1 |
21.7 |
19.3 |
19.0 |
18.3 |
17.6 |
15.3 |
13.3 |
11.8 |
9.5 |
8.9 |
8.9 |
9.3 |
46.3 |
|
2 |
19.6 |
19.1 |
19.0 |
18.4 |
19.0 |
17.6 |
16.2 |
15.1 |
19.7 |
17.1 |
17.2 |
22.9 |
46.0 |
|
3 |
20.8 |
19.2 |
19.8 |
19.4 |
19.6 |
18.3 |
17.0 |
15.2 |
19.6 |
17.2 |
17.4 |
22.9 |
45.0 |
|
4 |
21.8 |
22.5 |
22.8 |
22.9 |
22.6 |
20.2 |
21.7 |
18.1 |
20.0 |
17.6 |
17.5 |
22.9 |
42.3 |
|
5 |
20.7 |
17.8 |
18.8 |
18.7 |
18.9 |
17.2 |
14.2 |
11.8 |
10.0 |
9.7 |
9.2 |
9.6 |
42.3 |
|
6 |
21.1 |
18.7 |
18.7 |
20.0 |
18.0 |
17.0 |
14.4 |
12.2 |
9.9 |
9.5 |
9.2 |
9.6 |
44.4 |
|
7 |
17.5 |
15.4 |
15.4 |
15.2 |
15.7 |
13.6 |
12.1 |
10.5 |
9.6 |
10.0 |
9.5 |
10.1 |
39.9 |
|
8 |
17.4 |
16.2 |
15.5 |
16.2 |
15.8 |
14.3 |
12.7 |
11.3 |
9.3 |
9.1 |
8.9 |
9.4 |
39.8 |
|
9 |
15.3 |
13.2 |
13.0 |
13.1 |
13.7 |
11.6 |
10.2 |
9.5 |
8.4 |
8.8 |
8.4 |
9.2 |
36.3 |
|
10 |
15.5 |
13.9 |
12.6 |
13.8 |
13.5 |
12.2 |
10.8 |
9.8 |
8.9 |
8.8 |
8.7 |
9.5 |
34.7 |
|
11 |
8.3 |
8.0 |
6.7 |
6.3 |
6.4 |
7.0 |
7.1 |
7.3 |
8.1 |
8.1 |
8.3 |
9.3 |
30.1 |
|
12 |
12.0 |
11.5 |
9.5 |
9.3 |
8.5 |
7.3 |
7.2 |
7.3 |
8.0 |
8.0 |
8.3 |
9.2 |
36.5 |
|
13 |
16.9 |
8.7 |
7.7 |
6.8 |
7.2 |
7.3 |
7.4 |
7.7 |
8.3 |
8.4 |
8.8 |
9.7 |
34.5 |
|
14 |
16.1 |
15.1 |
15.1 |
14.0 |
14.0 |
13.1 |
11.2 |
10.2 |
9.3 |
9.4 |
9.5 |
10.4 |
40.8 |
|
15 |
14.0 |
14.1 |
11.6 |
10.4 |
12.0 |
10.7 |
9.7 |
8.6 |
8.6 |
8.4 |
8.5 |
9.5 |
42.5 |
|
16 |
15.2 |
9.4 |
8.5 |
7.9 |
8.4 |
8.1 |
7.6 |
7.7 |
8.0 |
8.1 |
8.2 |
9.3 |
35.5 |
|
17 |
10.2 |
8.2 |
8.7 |
7.7 |
7.6 |
7.6 |
7.3 |
7.6 |
8.0 |
8.2 |
8.6 |
9.5 |
33.8 |
|
18 |
22.0 |
12.5 |
13.5 |
10.2 |
8.9 |
8.5 |
8.2 |
8.4 |
8.5 |
8.7 |
9.2 |
10.0 |
41.5 |
|
19 |
21.4 |
23.3 |
23.5 |
26.1 |
26.1 |
28.4 |
28.7 |
27.9 |
23.2 |
17.6 |
11.9 |
10.5 |
40.3 |
|
20 |
16.2 |
15.6 |
15.4 |
13.9 |
14.5 |
13.7 |
11.4 |
10.0 |
9.2 |
9.2 |
9.0 |
9.8 |
36.9 |
|
21 |
13.7 |
14.7 |
15.3 |
14.4 |
13.3 |
11.9 |
10.8 |
10.0 |
9.8 |
9.9 |
10.3 |
10.8 |
31.5 |
|
22 |
25.6 |
26.8 |
26.3 |
25.0 |
24.5 |
24.3 |
21.1 |
18.5 |
16.7 |
15.6 |
13.2 |
12.1 |
43.6 |
|
23 |
18.8 |
18.2 |
19.4 |
17.9 |
18.2 |
16.5 |
13.2 |
10.8 |
9.7 |
9.3 |
9.1 |
10.0 |
33.3 |
|
24 |
17.7 |
19.3 |
20.1 |
19.3 |
17.7 |
17.1 |
15.8 |
15.0 |
14.2 |
14.8 |
14.3 |
13.2 |
32.7 |
第一阶段改造后噪声测试情况表
改造前我们测试点为P1,噪声值由49.0dBA降至46.3dBA,降低了2.7dBA。苹果公司也进行了测试,测试结果如下
|
测点 |
1 |
2 |
3 |
4 |
5 |
6 |
7 |
8 |
9 |
10 |
11 |
12 |
|
W-A |
47.8 |
46.6 |
47 |
47.9 |
46.5 |
45.1 |
45.8 |
44.6 |
47.4 |
46.3 |
34.5 |
42.1 |
|
测点 |
13 |
14 |
15 |
16 |
17 |
18 |
19 |
20 |
21 |
22 |
23 |
24 |
|
W-A |
38.4 |
39.1 |
38.9 |
42.9 |
31.8 |
36.8 |
44.9 |
50.7 |
46.5 |
47.7 |
46.1 |
46.3 |
苹果公司内部测试的数据在靠近机房侧与我方测试数据差异较小,证明仪器差别不大。距离机房较远的地方数据差异较大,可能是其他噪声的影响造成的(如通风噪声等)。我方测试时新风、空调均已关闭,且无其他人员影响应该更接近真实情况。
3. 第二阶段改造总结
供电单位对变压器实施了变压器的隔振和母线槽弹性处理后,我方与2020年5月13日下午15:00~16:00对苹果公司办公区进行了噪声测试,测试时变压器正常运行,办公区的通风空调设备均处于关闭状态,测试数据如下所示
|
频率(Hz)/测点 |
31.5 |
40 |
50 |
63 |
80 |
100 |
125 |
160 |
200 |
250 |
315 |
400 |
500 |
|
1 |
38.3 |
38.6 |
42.1 |
32.6 |
21.8 |
35.1 |
25.8 |
35.3 |
24.7 |
18.8 |
19.1 |
16.2 |
15.0 |
|
2 |
37.7 |
37.9 |
42.6 |
32.6 |
22.2 |
29.2 |
29.7 |
31.7 |
12.8 |
18.1 |
21.5 |
15.2 |
12.3 |
|
3 |
35.4 |
34.0 |
40.8 |
35.1 |
28.5 |
29.5 |
28.7 |
29.5 |
20.5 |
19.6 |
23.1 |
16.4 |
14.9 |
|
4 |
34.7 |
35.4 |
44.8 |
41.8 |
37.1 |
31.9 |
29.5 |
30.7 |
25.4 |
21.2 |
23.4 |
16.6 |
15.8 |
|
5 |
38.4 |
36.8 |
41.8 |
33.5 |
28.1 |
27.4 |
23.2 |
34.6 |
21.5 |
18.2 |
24.2 |
15.9 |
14.9 |
|
6 |
36.5 |
36.7 |
38.6 |
35.4 |
27.8 |
28.7 |
24.1 |
31.8 |
23.7 |
19.0 |
23.1 |
16.3 |
16.2 |
|
7 |
39.9 |
38.0 |
38.2 |
33.9 |
27.8 |
27.3 |
26.3 |
31.4 |
21.4 |
20.9 |
24.5 |
16.9 |
15.0 |
|
8 |
40.6 |
34.2 |
38.6 |
34.5 |
25.7 |
28.4 |
26.3 |
41.5 |
25.9 |
24.3 |
24.8 |
21.9 |
20.1 |
|
9 |
38.1 |
37.0 |
40.4 |
32.1 |
25.3 |
28.9 |
29.0 |
29.8 |
22.8 |
22.7 |
28.9 |
19.6 |
20.5 |
|
10 |
37.9 |
34.9 |
42.0 |
30.8 |
24.4 |
28.2 |
32.5 |
49.1 |
30.3 |
23.7 |
25.4 |
24.3 |
24.6 |
|
11 |
35.7 |
36.2 |
40.2 |
30.7 |
31.9 |
30.4 |
33.1 |
30.6 |
22.4 |
21.7 |
25.5 |
16.8 |
15.5 |
|
12 |
36.3 |
31.4 |
37.2 |
30.9 |
30.4 |
35.3 |
35.5 |
36.3 |
29.8 |
22.8 |
23.6 |
19.2 |
19.1 |
|
13 |
41.8 |
34.7 |
35.0 |
31.1 |
24.2 |
24.7 |
23.7 |
26.6 |
21.8 |
20.1 |
20.3 |
16.9 |
18.0 |
|
14 |
33.9 |
32.8 |
37.1 |
35.1 |
23.6 |
23.3 |
22.8 |
26.1 |
19.7 |
23.0 |
24.6 |
21.7 |
22.3 |
|
15 |
39.3 |
32.7 |
29.6 |
25.8 |
19.8 |
22.6 |
23.6 |
24.5 |
17.0 |
16.0 |
15.2 |
14.8 |
14.4 |
|
16 |
40.8 |
27.6 |
33.5 |
27.0 |
21.8 |
24.1 |
21.0 |
20.1 |
15.2 |
10.8 |
13.5 |
15.4 |
12.4 |
|
17 |
43.8 |
36.4 |
33.0 |
25.3 |
23.1 |
20.8 |
22.6 |
30.2 |
28.5 |
23.9 |
23.9 |
21.5 |
19.1 |
|
18 |
39.8 |
29.0 |
33.3 |
31.0 |
33.3 |
23.9 |
19.0 |
31.6 |
22.3 |
19.2 |
21.9 |
18.0 |
17.3 |
|
19 |
39.6 |
41.0 |
43.5 |
37.3 |
31.7 |
29.7 |
23.8 |
22.9 |
21.6 |
20.1 |
20.7 |
17.4 |
17.2 |
|
20 |
43.0 |
35.9 |
26.2 |
30.1 |
28.7 |
34.2 |
25.2 |
23.7 |
20.6 |
20.9 |
18.1 |
17.9 |
15.6 |
|
21 |
46.0 |
38.5 |
40.4 |
31.7 |
24.1 |
31.4 |
23.8 |
21.7 |
20.8 |
16.4 |
16.5 |
17.0 |
15.4 |
|
22 |
43.4 |
49.0 |
50.6 |
38.6 |
31.3 |
40.6 |
27.8 |
20.4 |
20.2 |
19.2 |
19.6 |
20.3 |
18.3 |
|
23 |
47.1 |
43.3 |
49.5 |
33.7 |
29.5 |
32.8 |
36.7 |
30.7 |
22.7 |
21.0 |
17.5 |
17.4 |
15.6 |
|
24 |
44.6 |
41.3 |
49.1 |
36.7 |
35.1 |
26.9 |
25.2 |
22.0 |
19.8 |
17.9 |
17.3 |
16.4 |
14.7 |
|
频率(Hz)/测点 |
630 |
800 |
1k |
1k25 |
1k6 |
2k |
2k5 |
3k15 |
4k |
5k |
6k3 |
8k |
W-A |
|
1 |
12.8 |
14.0 |
11.0 |
9.8 |
10.3 |
8.6 |
7.6 |
8.0 |
8.5 |
8.5 |
8.2 |
9.2 |
26.6 |
|
2 |
15.4 |
13.6 |
16.6 |
11.5 |
9.3 |
9.8 |
7.5 |
7.8 |
8.6 |
8.7 |
8.4 |
9.1 |
25.9 |
|
3 |
12.0 |
9.0 |
7.7 |
8.3 |
8.4 |
7.7 |
7.0 |
7.2 |
8.0 |
8.5 |
8.1 |
9.2 |
24.5 |
|
4 |
13.0 |
10.2 |
8.3 |
7.9 |
7.8 |
7.4 |
7.3 |
7.4 |
8.1 |
8.1 |
8.2 |
9.1 |
26.4 |
|
5 |
12.9 |
8.8 |
8.4 |
8.4 |
8.0 |
8.0 |
7.7 |
8.0 |
8.5 |
8.4 |
8.2 |
9.2 |
25.8 |
|
6 |
11.3 |
8.4 |
8.1 |
8.0 |
8.2 |
8.2 |
7.2 |
7.2 |
8.0 |
8.1 |
8.2 |
9.0 |
24.8 |
|
7 |
13.9 |
12.5 |
14.2 |
10.3 |
10.9 |
10.5 |
10.8 |
10.1 |
10.1 |
8.9 |
8.5 |
9.2 |
26.1 |
|
8 |
19.3 |
17.5 |
16.3 |
14.4 |
11.7 |
11.8 |
11.0 |
8.9 |
10.8 |
10.1 |
8.5 |
9.3 |
30.8 |
|
9 |
18.8 |
14.4 |
13.3 |
12.6 |
10.3 |
9.5 |
8.5 |
8.0 |
8.5 |
8.8 |
8.3 |
9.3 |
27.6 |
|
10 |
23.4 |
20.7 |
21.0 |
17.3 |
13.8 |
11.0 |
9.9 |
9.0 |
9.3 |
9.0 |
8.4 |
9.3 |
36.6 |
|
11 |
16.9 |
11.5 |
8.8 |
10.0 |
10.4 |
8.5 |
7.3 |
7.2 |
7.9 |
7.6 |
7.8 |
9.0 |
26.4 |
|
12 |
17.9 |
14.0 |
12.1 |
16.4 |
11.9 |
11.6 |
10.2 |
9.1 |
9.1 |
8.6 |
8.0 |
9.2 |
28.8 |
|
13 |
15.0 |
10.8 |
9.0 |
9.3 |
8.9 |
7.8 |
7.1 |
6.9 |
7.7 |
7.6 |
7.8 |
9.0 |
24.0 |
|
14 |
20.8 |
20.9 |
18.9 |
17.2 |
16.7 |
13.8 |
12.1 |
9.6 |
8.8 |
8.3 |
8.2 |
9.1 |
28.6 |
|
15 |
13.4 |
13.0 |
9.8 |
8.8 |
8.6 |
8.0 |
7.3 |
7.0 |
7.6 |
7.5 |
7.8 |
8.9 |
22.7 |
|
16 |
8.6 |
7.9 |
6.9 |
7.0 |
7.4 |
8.5 |
6.9 |
7.0 |
7.7 |
7.6 |
7.9 |
8.9 |
21.2 |
|
17 |
21.7 |
16.9 |
14.0 |
14.9 |
13.9 |
13.7 |
11.0 |
9.4 |
8.7 |
8.5 |
8.3 |
9.2 |
27.8 |
|
18 |
17.6 |
13.2 |
12.3 |
13.6 |
12.2 |
13.1 |
9.8 |
8.8 |
8.3 |
8.2 |
8.1 |
9.0 |
26.1 |
|
19 |
20.8 |
18.4 |
21.5 |
23.1 |
21.2 |
23.0 |
19.7 |
17.2 |
13.6 |
14.4 |
12.8 |
10.7 |
31.6 |
|
20 |
15.9 |
15.1 |
17.0 |
16.3 |
16.2 |
15.5 |
12.5 |
10.5 |
9.6 |
9.2 |
8.4 |
9.1 |
26.8 |
|
21 |
14.9 |
12.7 |
15.9 |
17.0 |
13.8 |
17.7 |
16.9 |
13.4 |
10.2 |
9.9 |
8.8 |
9.1 |
27.0 |
|
22 |
21.9 |
18.2 |
18.1 |
19.8 |
17.6 |
17.5 |
14.9 |
13.3 |
12.9 |
12.4 |
12.0 |
11.7 |
30.2 |
|
23 |
16.2 |
13.0 |
13.1 |
14.4 |
13.8 |
14.9 |
12.4 |
10.5 |
9.3 |
9.5 |
8.8 |
9.4 |
28.1 |
|
24 |
15.2 |
11.4 |
12.1 |
13.0 |
12.3 |
14.4 |
13.6 |
12.2 |
11.3 |
9.5 |
8.5 |
9.1 |
26.3 |
4. 结论
国标《民用建筑隔声设计规范》(GB50118-2010)对办公室的噪声要求如下表所示

多人办公室低限要求为45dBA,单人办公室低限要求为30dBA,现状噪声最高的在P10测点处,噪声值为36.6dBA,受其他设备干扰。办公区内所有点位的噪声均满足《民用建筑隔声设计规范》(GB50118-2010)的规定。
北京华清思创声学技术有限公司
2020年5月14日




京公网安备 11010802031339号