1、工程概况
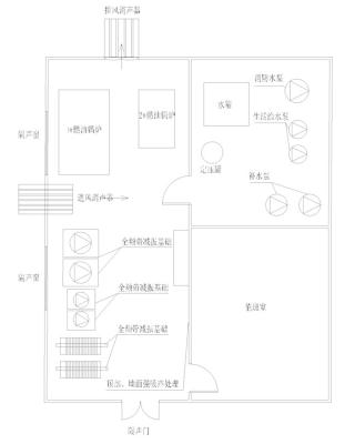
本工程位于北京市海淀区五棵松桥西,噪声源为燃油锅炉及循环水泵,机房位于居民的斜下方,设备布置平面图如下所示:

经过对现场的勘查可以基本确定噪声的种类和传播途径,本案主要是由振动传声以及空气声传播导致居民区敏感点噪声级别过高。由现场可以确定原有一次循环水泵以及二次循环水泵没有作合适的基础减振措施,导致水泵的转动振动直接传导至建筑结构之上;其次燃油锅炉运转时产生高达85dB(A)的噪声,而且由于锅炉房维护结构存在比较严重的露声环节,如门、窗、排气扇等,使得空气声很容易的通过这些薄弱环节传递到居民室内,导致敏感点噪声级超标。
经过现场测试,我们获得了具体的声学数据:

从数据中看出锅炉系统运行时,居民室内噪声源超出工业企业厂界噪声规范夜间一类区的标准,也不满足GB118-88民用建筑设计规范夜间三级的要求(40dBA,三级为最低要求)。严重影响居民的正常生活和休息。
2、治理方案
针对本案的具体情况,我们制定了下述治理方案:
- 减振处理
针对振动比较强烈的动力设备进行基础改造,由于振动噪声的频带较宽,所以我们采用了宽频带的减振基础,以有效的降低低频、中频以及高频噪声,实现全面降噪的目的。
- 隔声处理
由于现有维护结构的隔声量不足,所以我们针对漏声比较严重的薄弱环节进行改造,主要体现在隔声门、窗的设计、安装。
- 消声处理
由于经过隔声改造之后所有门窗需要关闭,为了满足燃油锅炉的工艺要求,我们将设计进、排风系统,并在通风通道上设计、安装相匹配的消声装置,以满足维护结构的隔声要求。
- 吸声处理
由于整个系统正常运行时,机房内的A声级高达90dB,为了有效降低噪声影响,需要对机房内所有的墙面以及屋顶作强吸声处理,经过处理的室内噪声级将降低10分贝左右。
- 管道穿墙处理
由于水泵的振动比较大,致使水泵出水管随之大幅振动,水管的振动必然会带动墙体的振动,一旦造成结构墙体振动,居民室内的墙体就会变成一个辐射声源。在软连接的基础上一定要断开管道与墙体的连接,确保居民室内最小程度受水泵的干扰。

3、现场施工照片

4、检测报告





京公网安备 11010802031339号